TMCC Measured Drawings
At TM Construction and Consulting (TMCC), we provide accurate and detailed Measured Drawings for construction projects of all sizes. Measured drawings are essential for renovation, refurbishment, and new construction projects, providing precise documentation of the existing site or structure. Our expert team conducts on-site measurements and creates comprehensive drawings that serve as the foundation for planning, design, and construction processes.
Our Measured Drawing Services
On-Site Measurement Surveys: TMCC’s experienced team conducts thorough on-site surveys, measuring every element of the building or site to create detailed and accurate representations. This includes measuring floor plans, elevations, sections, and other key aspects of the structure.
As-Built Drawings: We create as-built drawings that reflect the exact dimensions and conditions of an existing structure. These are essential for renovations or retrofitting projects where understanding the current state of the building is crucial for successful planning and design.
Site Plans: Our measured drawing services include site plans that document the existing layout of land, infrastructure, landscaping, and any existing buildings. These plans are essential for planning new developments or changes to the site.
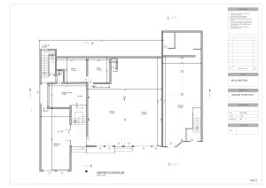
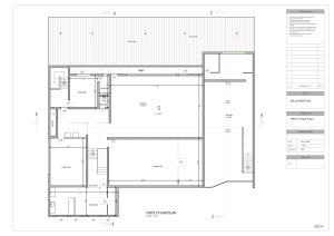
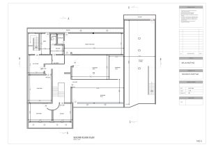
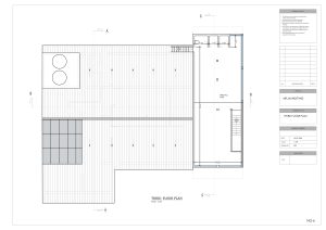
Interior Layouts: For interior renovations or space reconfigurations, we provide measured drawings of floor plans, including walls, doorways, windows, and other architectural elements. This ensures that your new design integrates smoothly with the current structure.
Elevations & Sections: Our measured drawings include exterior and interior elevations, as well as cross-sections, to give a complete picture of the building’s dimensions, materials, and features. These are crucial for planning extensions, modifications, or restoring historic structures.
What Are Measured Drawings?






Measured drawings are scaled drawings that capture the current dimensions and conditions of a building or site. They are typically used for projects where the existing structure will be renovated, expanded, or restored. These drawings offer an accurate representation of the space, allowing architects, engineers, and contractors to plan new designs while considering the existing framework.
Why Measured Drawings Are Important
- Accurate Documentation: Measured drawings provide a precise record of the existing building or site, ensuring that all future work is based on reliable, accurate information.
- Essential for Renovations & Restorations: Whether you’re renovating a home, restoring a historic building, or making modifications to a commercial space, measured drawings ensure that the new design fits perfectly with the existing structure.
- Improved Planning & Design: With accurate measured drawings, architects, engineers, and contractors can create designs that are tailored to the exact dimensions and conditions of the site, reducing errors and streamlining the construction process.
- Regulatory Compliance: Many local authorities require measured drawings for renovation and construction projects to ensure compliance with building codes and regulations.
Why Choose TMCC for Measured Drawings?
- xpert Team: Our team has extensive experience in conducting precise on-site measurements and translating them into detailed, accurate drawings.
- Comprehensive Solutions: We provide a full range of measured drawing services, covering everything from simple floor plans to complex elevations and site plans.
- Tailored to Your Project: Every project is unique, and we customize our measured drawing services to meet the specific needs of your renovation, expansion, or new construction project.
- Integrated Services: As a construction and consulting firm, TMCC offers a seamless integration of measured drawings with the overall project plan, ensuring that design and construction proceed smoothly from start to finish.
Our Process:
- Initial Consultation: We begin with a consultation to understand the scope of your project and determine the specific measured drawing needs.
- On-Site Measurement: Our team visits the site to take detailed measurements, capturing every element necessary for the drawings.
- Drawing Development: Using the measurements collected, we create scaled, accurate drawings of the building or site, including floor plans, elevations, sections, and site plans.
- Review & Delivery: Once completed, we review the drawings with you to ensure they meet your requirements before delivering the final set for use in your project.
Contact Us
For accurate and detailed measured drawings that provide a solid foundation for your next project, contact TMCC today. Our team is ready to assist you with all your measurement and drawing needs.
Â
- All
- Gallery Item







