Production Drawings for Construction Projects
At TM Construction and Consulting (TMCC), we provide precise and detailed Production Drawings that serve as the backbone of any successful construction project. Our production drawings ensure that your construction team has all the necessary technical details, from materials and measurements to assembly instructions. With years of experience, TMCC delivers production drawings that streamline the construction process, reduce errors, and ensure smooth project execution.
What Are Production Drawings?
Production drawings are highly detailed technical documents that guide contractors and construction teams during the building phase. These drawings include specifications for materials, components, and installation methods, ensuring that every aspect of the project is built to the exact standards required. They provide the “how-to” for constructing everything from residential homes to large commercial buildings.
Our Production Drawing Services
- Detailed Architectural Drawings
- Structural Drawings
- Mechanical, Electrical & Plumbing (MEP) Drawings
- Fabrication & Assembly Drawings
- Interior Detailing
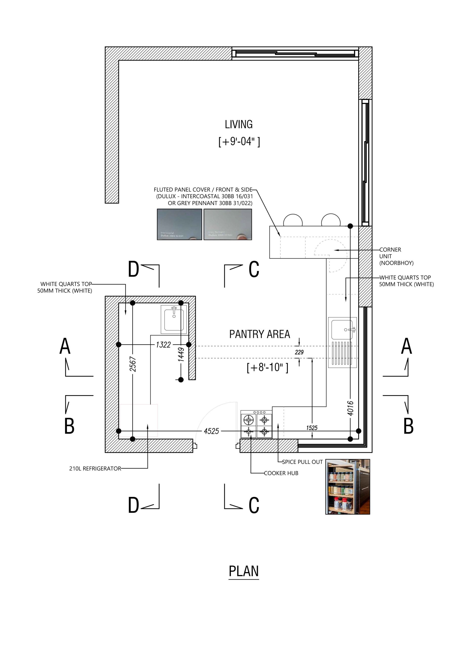
We prepare in-depth architectural drawings that provide floor plans, elevations, sections, and detail views. These include precise measurements and material specifications, ensuring that every part of the project is accurately constructed.
Our structural production drawings cover the technical aspects of your building’s framework. These include details for foundations, beams, columns, and other load-bearing elements. We ensure that all structural drawings comply with safety regulations and industry standards.
We deliver comprehensive MEP drawings that include the layout and installation details for mechanical systems (HVAC), electrical wiring, and plumbing infrastructure. These ensure that all systems are integrated seamlessly into your building design.
For complex structures and components, we provide detailed fabrication and assembly drawings. These ensure that every part is manufactured to the correct specifications and assembled efficiently on-site.
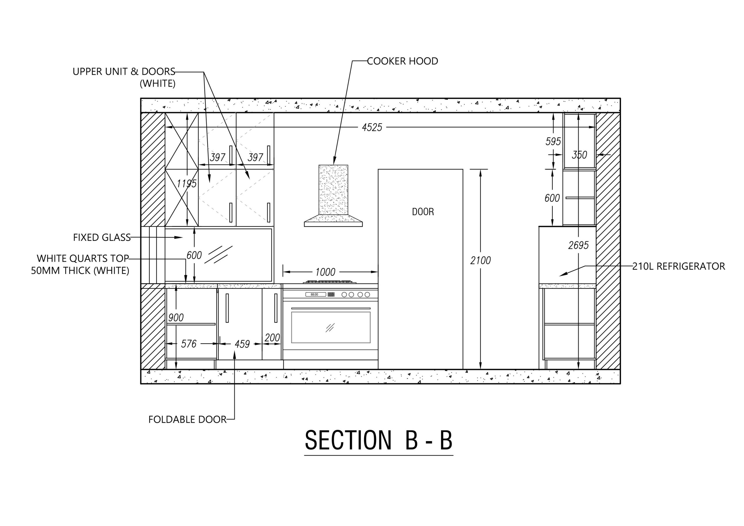
We also offer production drawings for interior finishes, including cabinetry, joinery, fixtures, and fittings. This ensures that the interior of your project is built with precision and attention to detail.
- Detailed Architectural Drawings
- Structural Drawings
- Mechanical, Electrical & Plumbing (MEP) Drawings
- Fabrication & Assembly Drawings
- Interior Detailing
We prepare in-depth architectural drawings that provide floor plans, elevations, sections, and detail views. These include precise measurements and material specifications, ensuring that every part of the project is accurately constructed.
Our structural production drawings cover the technical aspects of your building’s framework. These include details for foundations, beams, columns, and other load-bearing elements. We ensure that all structural drawings comply with safety regulations and industry standards.
We deliver comprehensive MEP drawings that include the layout and installation details for mechanical systems (HVAC), electrical wiring, and plumbing infrastructure. These ensure that all systems are integrated seamlessly into your building design.
For complex structures and components, we provide detailed fabrication and assembly drawings. These ensure that every part is manufactured to the correct specifications and assembled efficiently on-site.
We also offer production drawings for interior finishes, including cabinetry, joinery, fixtures, and fittings. This ensures that the interior of your project is built with precision and attention to detail.
Why Production Drawings Are Important
-
Precision & Clarity
Production drawings provide the precise measurements and technical details needed to avoid errors and miscommunication during construction.
-
Cost Efficiency
By providing clear instructions and specifications, production drawings reduce the likelihood of mistakes or changes during construction, saving time and money.
-
Compliance & Safety
Our drawings comply with all relevant building codes, standards, and safety regulations, ensuring your project is safe and legally approved.
-
Streamlined Construction Process
With accurate production drawings, your construction team can work efficiently, reducing delays and keeping your project on schedule.
Benefits of TMCC's Production Drawings
- Accurate & Detailed: Our production drawings are meticulously detailed, ensuring that every component of your project is clearly defined.
- Tailored to Your Project: We customize our production drawings to meet the specific needs of your construction project, ensuring that they align perfectly with your vision and goals.
- Comprehensive Coverage: From architectural details to structural components and MEP systems, TMCC provides complete production drawings that cover every aspect of the build.
- Experienced Team: With extensive experience in both construction and consulting, our team ensures that every drawing meets the highest standards of accuracy and compliance.
Our Process
- Initial Consultation: We work with you to understand the scope of your project, gathering all necessary design documents and specifications.
- Development of Drawings: Our team of expert draftsmen and engineers creates detailed production drawings that reflect your project's design and technical requirements.
- Review & Adjustments: We work closely with you and your construction team to review the drawings, making any necessary adjustments before finalizing them.
- Delivery of Final Drawings: Once approved, we provide the final production drawings, ready for use by your construction team.
- All
- Gallery Item
Contact Us
For accurate, detailed production drawings that ensure the success of your construction project, contact TMCC today. Our experienced team is ready to support you at every stage of your build.





